


















全屋訂製 櫃體尺寸與節點
作 者:高偉科 編
出 版 社:江蘇鳳凰藝術出版社
出版日期:2023年08月01日
頁 數:224
裝 幀:精裝
開本:大16開
ISBN:9787574109681
主編推薦
超全樣式櫃體,總有一款讓你怦然心動本書9大功能空間共200餘種新穎櫃體樣式供你選擇,內含玄關櫃、電視櫃、書櫃、櫥櫃、榻榻米、衣帽間、陽台櫃,酒櫃、衣櫃九種櫃體,超多搭配樣式,助你打造理想的家。 *櫃體定製圖與線圖對應清晰,尺寸詳細,直觀明了本書櫃體平面圖、立面圖、結構圖、節點圖、剖面圖、效果圖一一對應,尺寸詳細標註,材質選用、顏色搭配直觀展示,讓你拿來就能用。 *有顏值,有乾貨 封面外觀設計大氣沉穩,內文圖片精美,尺寸圖詳細準確,材質運用、顏色搭配資訊公開,是設計師的佳選。
內容介紹
新裝修的房子到底選什麼樣的全屋訂製櫃?
本書共有200多種新穎櫃體樣式供你選擇,總有一款適合你,帶你打造理想的家。
心儀的櫃體樣式卻苦惱於沒有對應的尺寸圖?
本書櫃體效果圖、平面圖、立面圖、結構圖、節點詳圖、剖面圖一一對應,直觀、明了,讓你拿來就能用。
不知道喜歡的櫃體材質選用和顏色搭配?
本書超詳細配有每種櫃體的材質選用信息,顏色搭配信息,讓你選用櫃體沒負擔。
有些櫃體細部圖具體做法不知道?
本書配有櫃體節點詳圖,讓你了解櫃體細部做法,輕鬆解決設計難題。
目錄
●①玄關櫃005
②酒櫃025
③榻榻米053
④衣櫃075
⑤書櫃101
⑥衣帽間127
⑦陽台櫃153
⑧電視櫃165
⑨櫥櫃191
















全屋訂製 家具設計CAD圖集
出版社:江蘇鳳凰科學技術出版社
出版時間:2024年01月
編者:曾麒麟 袁 偉
責任編輯:趙 研 劉屹立
ISBN 978-7-5713-3768-1
開本:16
成書尺寸:210mm(寬)×265mm(高)
紙張:128公克太陽啞粉
印刷時間:2024年01月
版次、印次:第1版,第1次印刷
頁數:288頁
編輯推薦
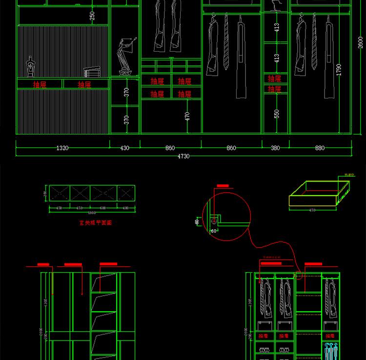
1. 為讀者提供了精選室內空間中常見的9類、157件定制櫃體的現場下單圖,本書遵循“實用又好看”的設計原則,致力於在實際定制需求中找到理想的平衡點。
2. 書中詳細標註了櫃體的做法與尺寸,不僅為設計師提供了靈感,也為消費者提供了實際選購參考,幫助他們在定製家具中找到滿足個性化需求的方案。
3. 本書提供大量精美的效果圖,將幫助讀者更好地理解如何在客製化櫃體設計中實現實用性和美觀性的平衡。
4. 隨書送1000餘張高清櫃體施工圖,手機隨時翻閱,物有所值。
目錄
第1章 鞋櫃
第2章 電視櫃
第3章 餐邊櫃
第4章 廚櫃
第5章 衣櫃
第6章 置物櫃
第7章 書櫃
第8章 衣帽間
第9章 榻榻米
內容簡介
在過去20年裡,從家具商場直接購買成品家具逐漸演變為選擇定製家具的趨勢,這使得定製家具行業蓬勃發展。
本書從實際出發,為裝修公司與設計工作室的設計師、從事定製家具設計工作的新人提供直覺的結構設計,從而填補設計師在定制行業歷練中可能存在的知識空白。並在為從業者提供所需知識和實用技能指南的同時,為消費者提供更詳細的了解定製家具的途徑。
本書精選室內空間中常見的9 類、157 件訂製櫃體的現場下單圖,遵循「實用又好看」的設計原則,書中詳細標註了這些櫃體的做法與尺寸,將收納與展示做到了理想的平衡。
